The Setai Unit #1707-Combo-1707/1708/1807 | For Sale
The Setai Unit #1707-Combo-1707/1708/1807 Description
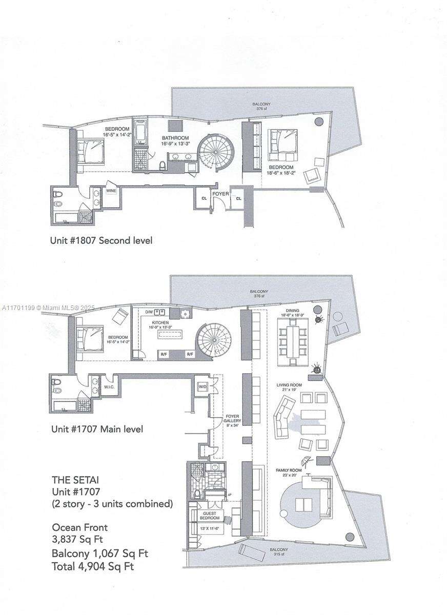
A designer duplex home at the prestigious Setai Miami Beach. This 4-bedroom, 4-bathroom, two-story duplex residence combined by the developer offers over 3,800 SF of thoughtfully designed interiors, featuring Venetian plaster, high-end finishes, and expansive formal and informal living spaces that create a true sense of home. Spacious corner bedroom suites and over 1,000 SF of wraparound terraces showcase breathtaking ocean views and the vibrant energy of Miami Beach. Enjoy world-class resort amenities, including 24-hour room service, three exceptional restaurants, and pool and beachside services. An extraordinary opportunity to own at this quintessential Miami Beach address.
The Setai Unit #1707-Combo-1707/1708/1807 Floor Plans
-
Days On Market:244Listed:Nov 29, 2024
-
Size:3837 ft2 (356m2)Rooms:4
-
Bathrooms:4Baths Half:0
-
Annual Tax:$138,494Tax Year:2023
-
Maintenance Fee:$631Association Fee:$16,996
-
Terms:All CashProperty Facing:East
Property Features
Facts and features |
---|
Views
Bay
Intracoastal View
Direct Ocean
Ocean Front
|
Interior Features
Lobby
First Floor Entry
Second Floor Entry
Closet Cabinetry
Fire Sprinklers
Walk-In Closet(s)
|
Exterior Features
Open Balcony
|
Appliances
Dishwasher
Disposal
Dryer
Electric Water Heater
Ice Maker
Microwave
Electric Range
Refrigerator
Wall Oven
|
Parking
2 Or More Spaces
Guest
Valet
Limited # Of Vehicle
|
Other Facts |
---|
Heating
Central
Electric
|
Cooling
Central Air
Electric
|
Electric
Circuit Breakers
|
Flooring
Carpet
Ceramic Floor
Marble
|
Window Features
Clear Impact Glass
Complete Impact Glass
Blinds
High Impact Windows
Impact Glass
|
Door Features
High Impact Doors
|
Amenities |
---|
Laundry Features
Washer/Dryer Hook-Up
|
Patio And Porch Features
Open Balcony
|
Association Amenities
Bar
Elevator(s)
Exercise Room
Heated Pool
Pool
Sauna
Spa/Hot Tub
Trash Chute
|
Architectural Style
Corner Unit
High Rise
|
Construction Materials
Concrete Block Construction
CBS Construction
Piling Construction
Slab Construction
|
Structure Type
Condo 5+ Stories
Condo
|
Schools |
---|
Elementary School
South Pointe
|
Middle Or Junior School
Nautilus
|
High School
Miami Beach
|

New Sales & Rentals Units
Prices & Pictures Updates